Leave a Message

Thank you for your message. I will be in touch with you shortly.

Browse Properties

Property Description

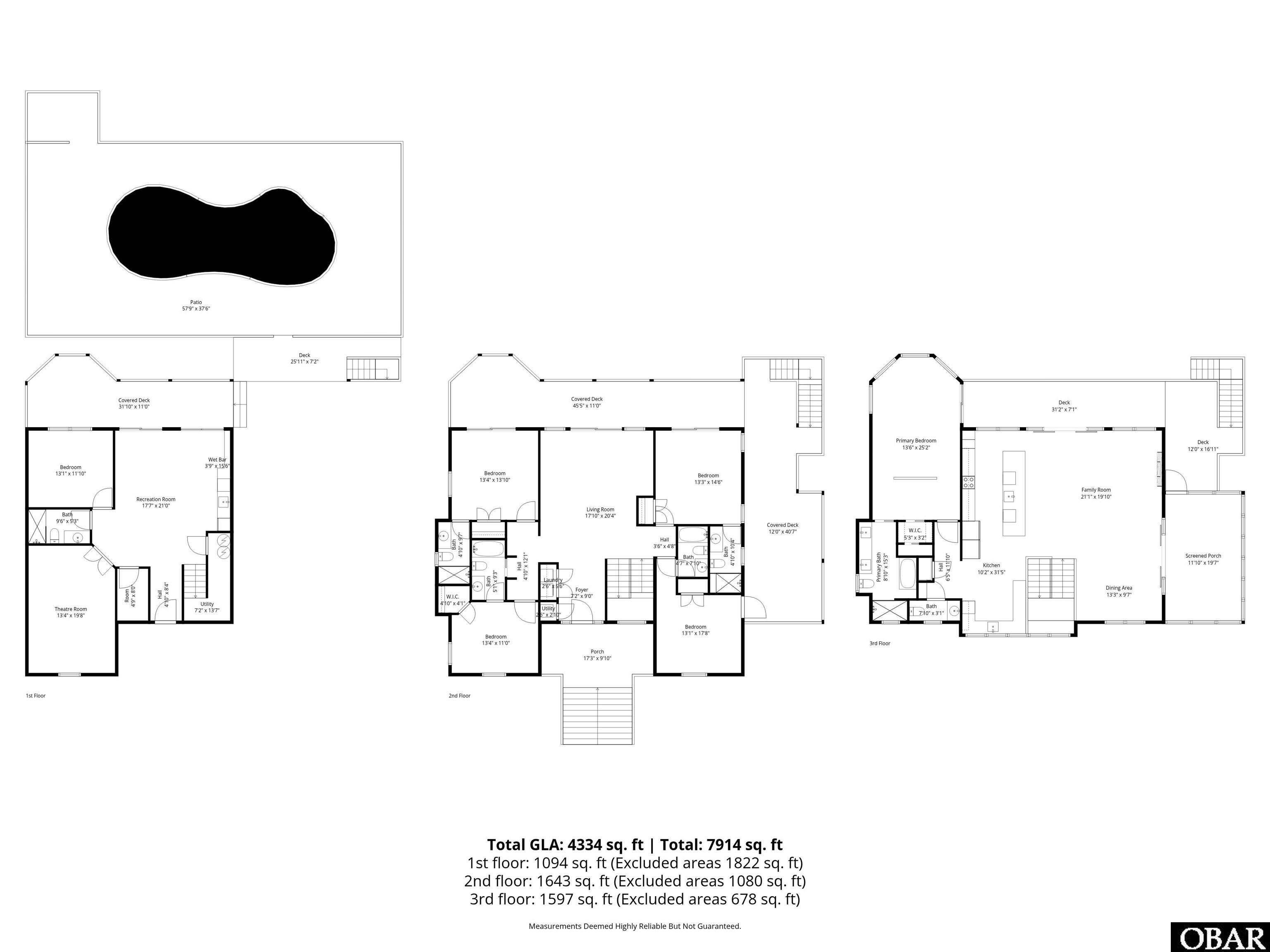
Building a 4,200 sq. ft. oceanfront estate in the 4x4 area of Carova requires a vision for both luxury and resilience. This 2022-built masterpiece, situated on the tranquil northern end of the beach, is a rare find that perfectly balances sophisticated design with the rugged spirit of the Outer Banks. Perched high on its lot and located within the coveted X flood zone, the property offers immediate peace of mind and significantly lower insurance overhead--a major advantage for any savvy coastal investor. Currently enjoyed as a meticulously maintained second home, the property arrives on the market in pristine condition with a pre-listing home inspection already completed. Because it has never been heavily rented, the home shows like new, yet its 6-bedroom ensuite layout and high-end amenities position it as a potential powerhouse in the luxury vacation rental market, where similar oceanfront estates command premium weekly rates.

The home's architecture is a testament to thoughtful planning, featuring a maintenance-free exterior of vinyl shakes and PVC trim that stands up to the salt air without the constant upkeep of traditional wood. Inside, the three levels of living space are unified by high-end engineered hardwood floors and a design language centered on the Atlantic. The focus here is entirely on the "wave-breaking" ocean views, which are maximized by walls of windows and sleek stainless steel wire railings that provide an unobstructed sightline from almost every vantage point.

The layout was expertly crafted for large-scale entertaining and multi-generational comfort--features that are highly sought after by high-end vacationers. The first floor serves as a social hub, featuring a sprawling gathering area with a pool table, a full-sized wet bar with a beverage cooler, and a private, tiered-seating movie theater for rainy days or late-night screenings. This level also includes a comfortable bedroom with deck access and a full bath, leading directly to an expansive poolside oasis. Here, you can cool off in the private pool or enjoy cocktails at the poolside bar while the sounds of the surf provide the ultimate coastal soundtrack. Moving to the mid-level, you'll find a second spacious sitting area and four generous bedrooms--three of which are ensuites. The oceanside rooms offer breathtaking views, and three of the bedrooms provide direct access to the covered deck, where a hot tub allows for year-round relaxation in any weather condition.

The top floor is the home's undeniable "crown jewel." Vaulted ceilings and massive windows flood the great room with natural light, framing the ocean like a living piece of art. The chef's kitchen is a showpiece of both style and utility, featuring quartz countertops, Fabuwood soft-close cabinetry, and a professional-grade Viking range. With dual refrigerators and dual dishwashers, hosting large groups is effortless. Just off the kitchen, a separate wet bar with a beverage fridge and dedicated coffee bar creates the perfect station for morning espresso or evening cocktails. The space flows naturally into the grand dining area and the living room, which is anchored by an elegant electric fireplace. Step out to the expansive screened-in porch for al fresco dining with a view, or retire to the primary suite, where the king bed is strategically positioned to ensure you wake up every morning to a sunrise over the ocean. This suite is a true sanctuary, complete with a walk-in tile shower, soaking tub, and private deck access. Located just a half-mile walk from the wild beauty of False Cape State Park and sold fully furnished (with minor exclusions), this property is a pinnacle of Carova luxury and a turn-key investment with exceptional rental upside.

Overview

Property Status
For Sale
MLS ID
131707
Property Type
Residential
Year Built
2022

Features & Amenities

Total Area
4,280 Sq.Ft.
Neighborhood
Corolla
Architecture Styles
Reverse Floor Plan
Water Frontage
Beach Front, Beach Access, Ocean Front
View Description
Ocean
Water Source
Private, Well
Pool
Outdoor Pool, Fiberglass, In Ground, Private
Roof
Asphalt
Lot Features
Waterfront
Heat Type
Heat Pump, Central
Air Conditioning
Ceiling Fan(s), Central Air, Heat Pump
Appliances
Range, Oven, Water Purifier, Dryer, Dishwasher, Microwave, Refrigerator, Washer, Wine Cooler
Other Interior Features
Cathedral Ceiling(s), Wet Bar, Walk-In Closet(s)
Sewer
Septic Tank
Sales Price
$2,100,000
Real Estate Tax
$7,973/yr

Downloads

2355 Sandfiddler Road Lot #13

Schedule a Tour

I would love to show you this beautiful property. Please select your preferred date and time below. I will be in touch shortly to confirm your appointment.

Thank you

for your interest in 2355 Sandfiddler Road Lot #13, Corolla, NC 27927

2355 Sandfiddler Road Lot #13
Navigate
Corolla

Explore Corolla

read more

Mortgage Calculator

Estimate your monthly mortgage payment, including the principal and interest, property taxes, and HOA. Adjust the values to generate a more accurate rate.
$0,000 Your Payment 20 15 65
$0,000 Your Payment

I'm Interested In

2355 Sandfiddler Road Lot #13

or Contact

Follow Us On Instagram